OFFICES IDEAL HEAD OFFICE

BC PROPERTIES MONACO

BC PROPERTIES MONACO

13 Boulevard Princesse Charlotte

This area is very popular and very close to the Casino Gardens. The offices are in a high-end building close to all amenities.

Price on request
Product type : Office
District : Carré d'Or
City : Monaco
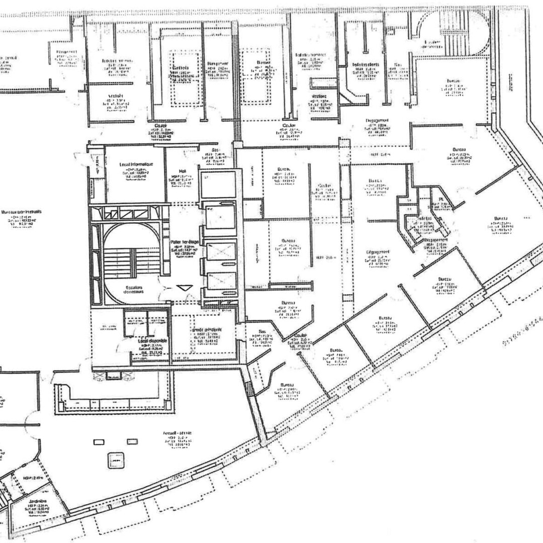
Living area : 1122 sqm
Total area : 1122 sqm
Release date : Immédiatement
Parking : 2

Facing the gardens of the Casino, these offices located in a highly sought-after luxury complex in the Carré d'Or offer beautiful volumes allowing for a personalized layout. It also offers direct and private access.
4 parking spaces complete this property.

BC PROPERTIES MONACO

BC PROPERTIES MONACO

13 Boulevard Princesse Charlotte

Contact

ABDGTY
Copy the antispam code into the field on its right
* required information

Districts of Monaco

Anse du Portier Carré d'Or Condamine Fontvieille Jardin Exotique La Rousse - Saint Roman Larvotto Monaco-Ville Moneghetti Monte-Carlo Port