GRANADA - Exotic Garden, furnished studio, quiet

1 650 000 €
AFIM SAM

AFIM SAM

3, avenue de Grande Bretagne

#Ref : 517V15699A
Price : 1 650 000 €
Bathrooms : 1
Product type : Apartment
Building : Granada
District : Jardin Exotique (Monaco)
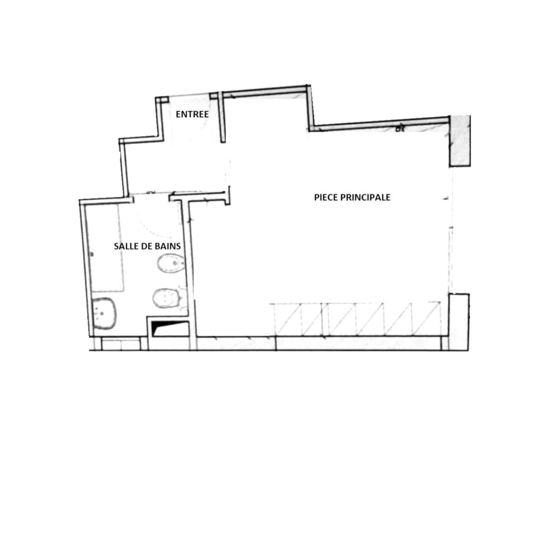
Living area : 28.5 sqm
Total area : 30 sqm
Terrace area : 1.5 sqm

More details

On the boulevard de Belgique, furnished studio, quiet, about 30 m² completely renovated including 1.50 m² balcony. Main room with large bay window, retractable bed, sofa, fully equipped new American kitchen with dishwasher, washing machine, oven, microwave, refrigerator) and bathroom. Available
AFIM SAM

AFIM SAM

3, avenue de Grande Bretagne

Contact

EJLNPW
Copy the antispam code into the field on its right
* required information

Property location

Jardin Exotique

Discover apartments in Monaco’s Jardin Exotique district.

Known for its panoramic sea views and peaceful atmosphere, this residential area offers attractive real estate opportunities.

Districts of Monaco

Mareterra Carré d'Or Condamine Fontvieille Jardin Exotique La Rousse - Saint Roman Larvotto Monaco-Ville Moneghetti Monte-Carlo Port