Grand Prix View, 3/4 Prestige Rooms at Mirabeau

Agence Continentale

Agence Continentale

19, boulevard des Moulins

Located in the prestigious "Le Mirabeau" residence, this apartment benefits from an exceptional location, in the immediate vicinity of the Metropole, the Place du Casino and the Larvotto beaches. The building offers a unique living environment, combining architectural elegance, high-end services and a sought-after urban atmosphere.

Price : 15 000 000 €
No. rooms : 3 rooms
Product type : Apartment
Building : Le Mirabeau
District : Carré d'Or
City : Monaco
Living area : 140 sqm
Total area : 164 sqm
Terrace area : 24 sqm
Floor : 4ème
Release date : Libre d'occupation
Parking : 1

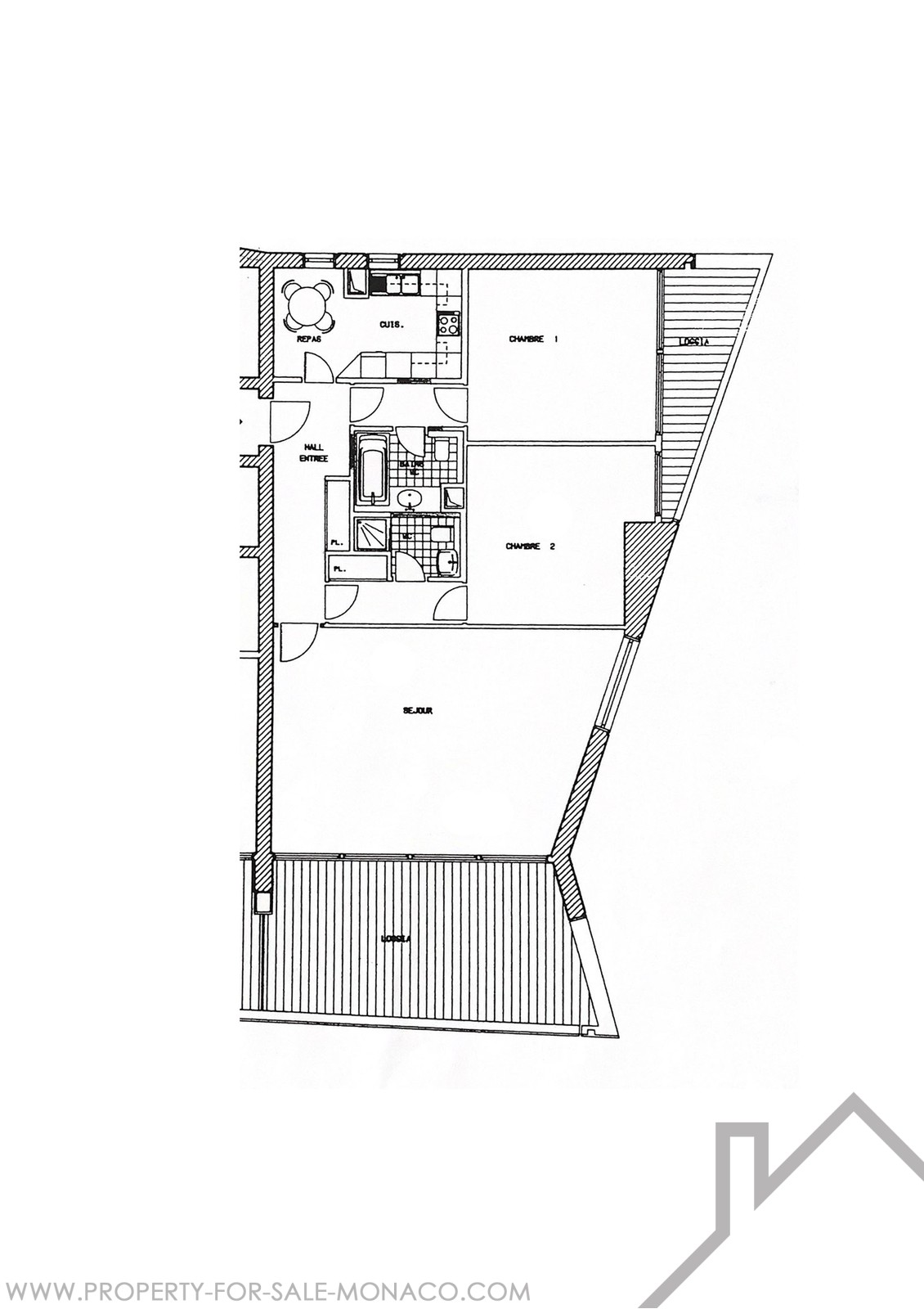
Description of the apartment

This superb 3/4 room apartment consists of an entrance leading to a bright living room opening onto two loggias, an independent kitchen, two bedrooms, a bathroom and a shower room. The whole enjoys a pleasant view of the Grand Prix circuit and a refined atmosphere, ideal for a main residence or a pied-à-terre.

Mirabeau residents enjoy exclusive amenities: swimming pool, gym, concierge service and 24-hour security. A parking space can be acquired in addition to the price indicated and completes this rare property, in the heart of the Carré d'Or.

Agence Continentale

Agence Continentale

19, boulevard des Moulins

Contact

JKMRVX
Copy the antispam code into the field on its right
* required information

Property location

Districts of Monaco

Anse du Portier Carré d'Or Condamine Fontvieille Jardin Exotique La Rousse - Saint Roman Larvotto Monaco-Ville Moneghetti Monte-Carlo Port