Commercial space with window

195 000 €
Exclusive Estate Monaco

Exclusive Estate Monaco

23 Bd Princesse Charlotte

#Ref : EEM-V-157
Price : 195 000 €
Product type : Sale of commercial lease
District : Monte-Carlo (Monaco)
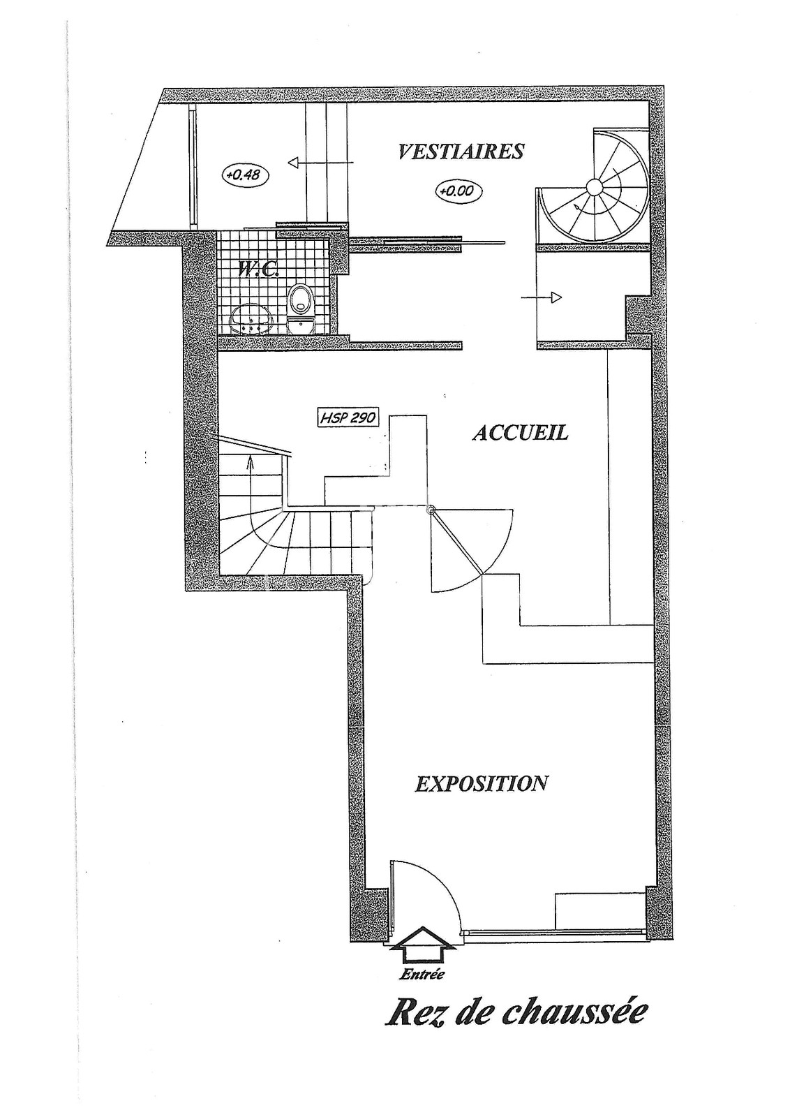
Living area : 145 sqm
Floor : Rdc

More details

a triplex-type commercial space ideally located on Avenue de Grande-Bretagne.

  • Ground floor : Surface area of approximately 50 m² overlooking the street with a large window, offering excellent visibility.
  • Lower level: A 30 m² space, perfect for storage or cloakroom use, also including a toilet.
  • First floor : A surface area of approximately 65 m², bright, with a window offering a breathtaking view of the sea.

    Lease all shops except catering.

    Commercial  lease - Current monthly rent: 4.422 € + 888 € charges.

Exclusive Estate Monaco

Exclusive Estate Monaco

23 Bd Princesse Charlotte

Contact

ILOQRW
Copy the antispam code into the field on its right
* required information

Property location

Monte-Carlo

Discover apartments in the heart of Monte Carlo.

This iconic district is famous for luxury residences, elegant lifestyle and world-class landmarks.

Districts of Monaco

Mareterra Carré d'Or Condamine Fontvieille Jardin Exotique La Rousse - Saint Roman Larvotto Monaco-Ville Moneghetti Monte-Carlo Port