BERMUDA - BEAUTIFUL BRIGHT 2 BEDROOM APARTMENT

Lorenza von Stein Monaco

Lorenza von Stein Monaco

47, boulevard du Jardin Exotique

Located in the Jardin Exotique district, sought-after for its calm, come and discover this beautiful, spacious three-room corner apartment. Bathed in light thanks to its south-facing aspect, it offers a warm and welcoming atmosphere throughout the day.
The bright, elegant living room opens onto a lovely terrace, ideal for enjoying the exceptional setting and unique panorama. The bedrooms, meanwhile, feature beautiful parquet flooring, adding an extra touch of refinement.
The kitchen, fully equipped and furnished, will seduce you with its functionality and contemporary style. The marble bathroom, with its double washbasin, embodies elegance and comfort. The entire apartment is air-conditioned for optimum comfort in all seasons.

Price : 3 950 000 €
No. rooms : 3 rooms
Product type : Apartment
Building : Bermuda
District : Jardin Exotique
City : Monaco
Living area : 89 sqm
Total area : 96 sqm
Terrace area : 7 sqm
Floor : 2
Release date : Libre

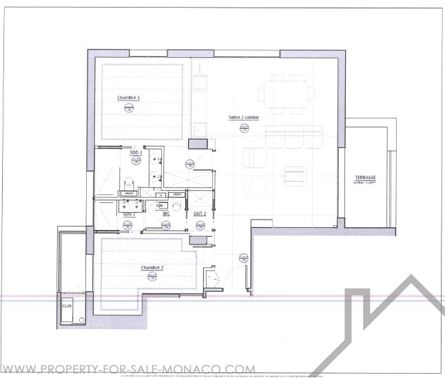
This attractive 2 bedroom apartment comprises: entrance hall, bright living room, fitted kitchen, 2 bedrooms with en suite bathrooms, terrace with sea and rock views.

Can be sold empty or rented out with a good rental yield.

An additional parking space can be purchased for 
350,000 €.

Lorenza von Stein Monaco

Lorenza von Stein Monaco

47, boulevard du Jardin Exotique

Contact

GLNQUX
Copy the antispam code into the field on its right
* required information

Property location

Districts of Monaco

Anse du Portier Carré d'Or Condamine Fontvieille Jardin Exotique La Rousse - Saint Roman Larvotto Monaco-Ville Moneghetti Monte-Carlo Port