Commercial Space for sale in Fontvieille

Carat Properties

Carat Properties

Tour Odéon 36 av. de l'Annonciade

Price : 2 014 000 €
No. rooms : -
Product type : Premises
Building : Botticelli
District : Fontvieille
City : Monaco
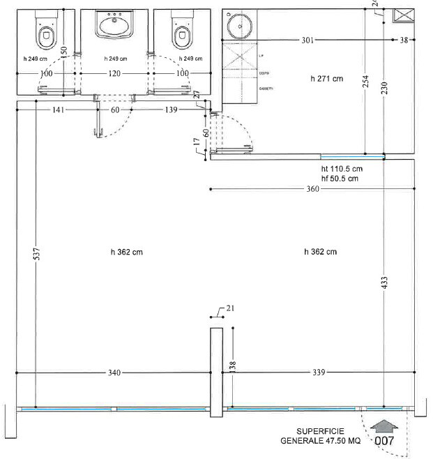
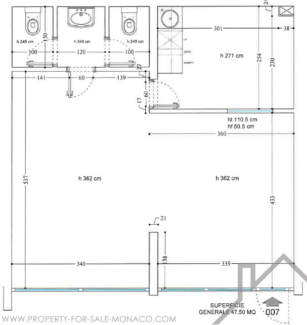
Living area : 47.5 sqm
Total area : 47.5 sqm
Floor : rdc
Release date : 21/10/2026

Commercial space for sale in Fontvieille, which can also be used as an administrative office

With a surface area of 47.5 m², it is located on the ground floor, giving it optimal visibility and accessibility

Sold rented 6050€ TTC/ month , until 31/10/2026

Carat Properties

Carat Properties

Tour Odéon 36 av. de l'Annonciade

Contact

AKNRTY
Copy the antispam code into the field on its right
* required information

Property location

Districts of Monaco

Anse du Portier Carré d'Or Condamine Fontvieille Jardin Exotique La Rousse - Saint Roman Larvotto Monaco-Ville Moneghetti Monte-Carlo Port