RAPHAEL

Monte-Carlo Estates

Monte-Carlo Estates

Le Prince des Galles 3/5 Av. des Citronniers

Renovated space with large window and quiet environment

Price : 3 500 000 €
No. rooms : -
Product type : Office
Building : Raphael
District : Fontvieille
City : Monaco
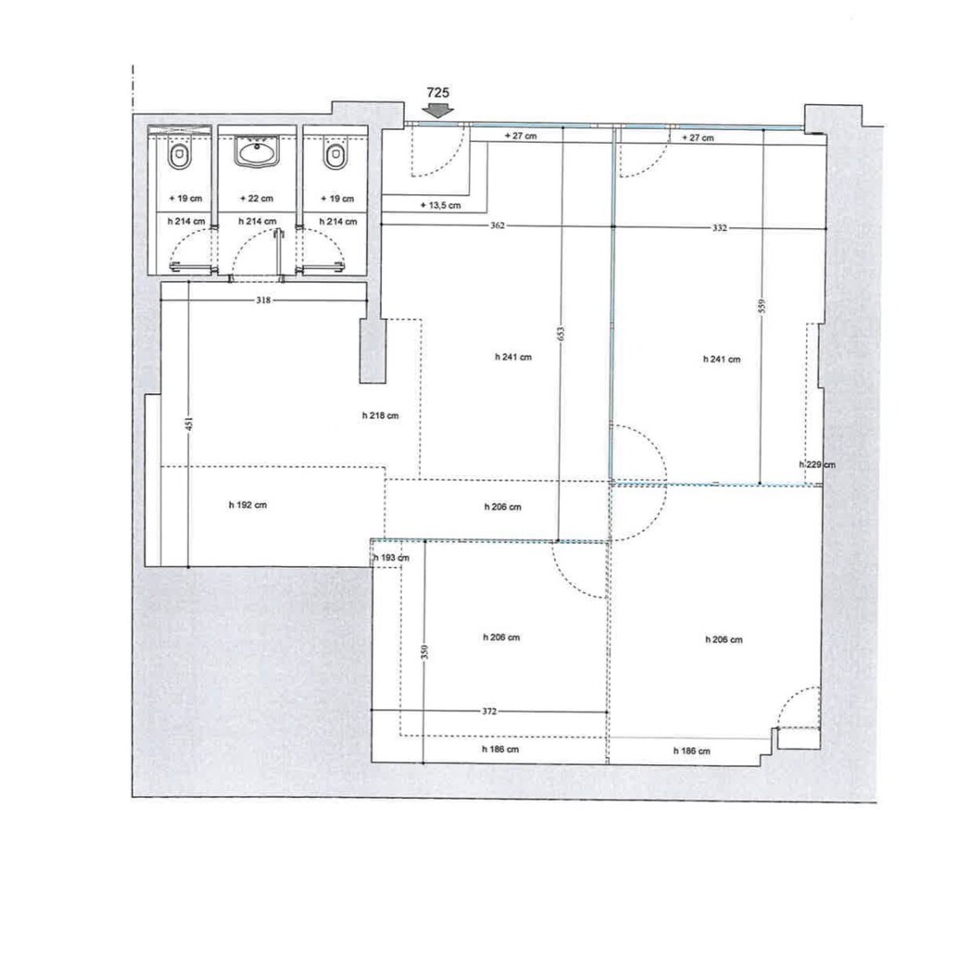
Total area : 94 sqm
Floor : RDC
Release date : 30/09/2026

Completely renovated premises with parquet flooring, offering:

  • A large window overlooking the gardens

  • Two independent accesses

  • Existing interior partitioning
    Located in a very quiet environment.

Monte-Carlo Estates

Monte-Carlo Estates

Le Prince des Galles 3/5 Av. des Citronniers

Contact

DFGMWX
Copy the antispam code into the field on its right
* required information

Property location

Districts of Monaco

Anse du Portier Carré d'Or Condamine Fontvieille Jardin Exotique La Rousse - Saint Roman Larvotto Monaco-Ville Moneghetti Monte-Carlo Port