Magnificent administrative office / Commercial premises Fontvieille

Carat Properties

Carat Properties

Tour Odéon 36 av. de l'Annonciade

Close to shops and amenities

Price : 2 780 000 €
No. rooms : 3 rooms
Product type : Office
City : Monaco
Living area : 87 sqm
Total area : 87 sqm
Floor : Rdc
Release date : 1er octobre 2026

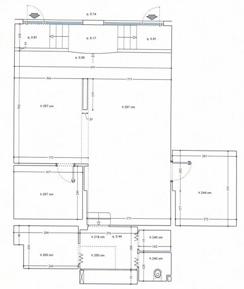
Located in the heart of Fontvieille, magnificent office with beautiful window and double access, consisting of an entrance hall, beautiful main room, two offices, a storage room, a laundry room, WC, large storage cupboard. Air conditioning. Nice services.

Rented 4.881,40 €uros TTC / month charges included. Lease 3/6/9

Carat Properties

Carat Properties

Tour Odéon 36 av. de l'Annonciade

Contact

DFHKRZ
Copy the antispam code into the field on its right
* required information

Property location

Districts of Monaco

Anse du Portier Carré d'Or Condamine Fontvieille Jardin Exotique La Rousse - Saint Roman Larvotto Monaco-Ville Moneghetti Monte-Carlo Port